ANFD Design Features

cGMP equipment design and construction
- Single (Monoblock) or Double (Detachable base) model options
- Highly efficient drying with integrated heating system
- Minimum gap design allowing reflux cleaning to achieve typically 2.5ppm to non-detectable
- Minimum solvent volumes beneath filter mesh for process optimisation
- Direct heel recovery system to improve productivity
- Sealed single piece agitators prevents leakage of heat transfer fluid into the process media
- Total interchangeability between cloth and mesh filtration media
- Optional detachable portable filter unit supplied on caster wheels (far right photo)
- High strength, precision machined inter-locking castellations on ANFD base and portable filter unit.
- FEP Elastomer sealing
- Detachable bottom from shell can be aligned by ‘ Super Clamp’ or Bayonet Type instead of conventional C clamp arrangement (see supply options)
- No manual handling between filtration and drying operations
- Thorough cake washing as desired.
- Product purity can be maintained.
- Complete Automation with PLC based control is possible (see options).
- The machine can be designed covering small to large filtration areas
- Solvent recovery is achievable.
ANFD Integrated Discharge Barrier Isolator
S2's is part of a Group of Companies which includes Schematic Engineering Industries - a leading supplier of barrier isolators. As such, S2 is able to supply their ANFD's with an integrated barrier isolator, as detailed below and shown in the photo. For further information, please click here. Our ANFD Barrier Isolators have the following features;
- Rugged 316 Stainless Steel build with fully welded, large radius and polished corners
- Push-push type safe changeable HEPA filters on inlet and outlet vents
- cGAMP - PLC/HMI controlled - Digital pressure controller or Electrical controller to maintain a constant pressure
- Integrated Clean In Place / washable to reach every corner of chamber
- Integrated Weighing Scale, Nutsche Filter, Vacuum Tray Dryer, Continuous liner port and Drum loader
- Laminar airflow
- Oxygen monitoring / Nitrogen inertization
- Complete Documentation – FDS, DQ, FAT, IQ, OQ, OMM, Leak test, Lux, Noise, Air change, Filter integrity, Glove test and OEL
- Integration with RTP for safe and rapid transfer
- Split Butterfly valve for safe transfer of material
- Multiple or Single Chambers
- Isolator raise/lower systems for operator comfort
ANFD Benefits
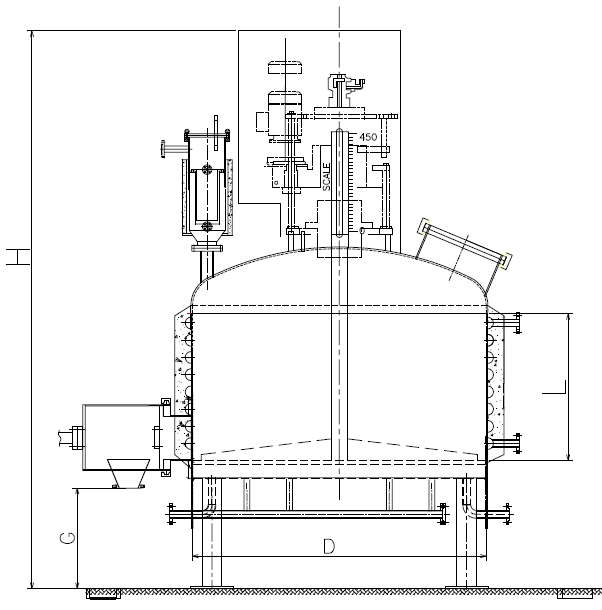
S2 provide ANF's with an integrated Dryer, to optimise production efficiency. This is termed an ANFD. The ANFD multipurpose agitator and drying solution with an unique feature being that the agitator performs a number of operations through movement in axes both parallel and perpendicular to the shaft.
This filter dryer was developed due to plant operator safety requirements and environmental concerns when processing solvents, particularly the issues surrounding solvent evaporation. The ANFD provides filtration under vacuum or pressure in a closed-loop system, a sealed vessel where solids can be discharged straightaway into a dryer. The key benefits of the S2 ANFD solution include;
- Slurry contents are kept fluidized until most of the mother liquor is filtered.
- When filtration is complete, the cake develops cracks causing upsets in the vacuum operation. This hinders removal of mother liquor. The ANFD is used to maintain a uniform cake, improving the quality of the delivered product.
- The cake can be washed after filtration by reslurrying the cake, within an automated production cycle within the vessel.
- After washing, the mother liquor can be refiltered. The cake can then be discharged by lowering the agitator and rotating it in such a manner that it brings all the cake towards the discharge port. The S2 solution minimizes any waste cake through innovative equipment design.
- Versatility is achieved in filtration, washing, re-slurring and drying with complete automation thus reducing the capital and operating costs.
- The detachable portable filter unit improves filter access and maintenance/replacement.
- FEP elastomer sealing provides optimised chemical compatiability - idea for plant batch operations
ANFD Technical Info
- Design & Construction: ASME Sec.VIII, Division-I, Latest Edition
- Main Dimensions: Designed to suit specific applications
- Flange Drilling: ANSI - B 16.6, #150
- Capacity: Typically supplied from 2L (for Kilo labs) to 12,000L (for bulk production), although larger models can be designed to suit client requirements.
- Pressure: 0-6 barg (0-90 psig)
- Operating Temperature: up to 200 Deg.C (390 Deg F.)
- Filtration: 10-200 Micron
The table below shows the S2 Engineering standard ANFD and ANF model numbers and capacities.


ANFD Supply Options
- Single piece – Monoblock design
- Dual Piece – Detachable bottom type
- Bayonet design detachable filter unit. This comprises of precision machined interlocking castellations for aligning and holding the shell and bottom bed. This avoids the complex and manually intensive C clamp arrangement.
- Super Clamp design detachable filter. This involves a sprung collar with single hydraulic clamp means.
- CE (one piece lid/body) and AE (removable lid for cleaning) models are available
- Variable Speed Drive Electric Motor for reduced equipment energy consumption.
- Barrier Isolator
- Full instrumentation pack for control room operation/DCS systems
- Thermal Control Unit (TCU) to manage and supply the thermal heating and cooling fluid for the heating jacket, where plant services is not available. Our TCU's are supplied by our Group company. Click here for information about Sunrax Process Technologies.
- Operator gantry and staircase
- Controlled discharge system
- Full instrumentation pack for Control Room management
- Powder Loading System
- Hot Water Washing Systems - CIP, SIP, WIP
- ATEX Rated (Explosion Proofed) to any standard
- Bespoke Guarding Systems, including laser beam guarding
- Load cells - to confirm the addition or discharge of product
- CE and PED compliance
- S2 offer a range of high chemical resistant ANFD solutions including chemical resistant vessel materials and coatings, as outlined below.
Alternate Materials of Construction: In addition to various grades of Stainless Steel (304, 316 and 416), ANFD's can be supplied in a number of different materials of construction including Alloy 20, Titanium, Alloy 22 and Alloy C276 (Hastelloy C).
Chemical Resistant Coatings: Compared to exotic alloy materials, chemical resistant coatings provide a lower coat of supply solution when processing highly aggressive substances. Our StanCoat high chemical resistant coating is an example of such a coating and this is also conducive for food grade applications. Read More
ANFD Applications
Agitated Nutsche filter Dryers (ANFD) is a filtration technique used in applications such as;
- Textiles and Dye
- Paints, Varnish and surface coatings
- Pharmaceutical production
- Waste water treatment